2nd Gen Ram Tech 1994-2001 Rams: This section is for TECHNICAL discussions only, that involve the 1994 through 2001 Rams. For any non-tech discussions, please direct your attention to the "General discussion/NON-tech" sub sections.

trans temp light :)

Thread Tools
 
Search this Thread
 
Old Jul 21, 2024 | 08:48 AM
  #1  
Wolfen1086's Avatar
Wolfen1086
Thread Starter
|
Veteran
5 Year Member
Joined: Jul 2017
Posts: 264
Likes: 15
From: Rich Square NC
Default trans temp light :)

I know my 96 has sensors for evenry thing and eth trans temp is one of them, I had to replace eth heat and air switches set and when I did all of a sudden I now have a trans temp waring light it comes on wit eth light test when you turn the key and goes out with everthing else
 
Reply
Old Jul 21, 2024 | 08:59 AM
  #2  
HeyYou's Avatar
HeyYou
Administrator
Veteran: Air Force
Community Favorite
15 Year Member
Community Builder
Joined: Apr 2010
Posts: 87,548
Likes: 4,230
From: Clayton MI
Default

That's the way its supposed to work.....
 
Reply
Old Jul 22, 2024 | 05:03 PM
  #3  
Wolfen1086's Avatar
Wolfen1086
Thread Starter
|
Veteran
5 Year Member
Joined: Jul 2017
Posts: 264
Likes: 15
From: Rich Square NC
Default

Yep the old one that I replaced didnt do that
 
Reply
Old Jul 26, 2024 | 07:32 AM
  #4  
itsGRIM's Avatar
itsGRIM
Registered User
Joined: Jul 2024
Posts: 5
Likes: 1
From: Chicago
Default

Are you saying that the light comes on when you start the truck and stays on until you turn it off? Have you had anything done to the transmission recently? A lot of the time the trans temp light coming on and staying on is caused by someone putting the wrong governor pressure/fluid temp sensor in. If someone accidentally buys the 4th design TCC solenoid. The 4th design isn’t backwards compatible meaning you can’t use the 4th if your truck came with the 3rd.



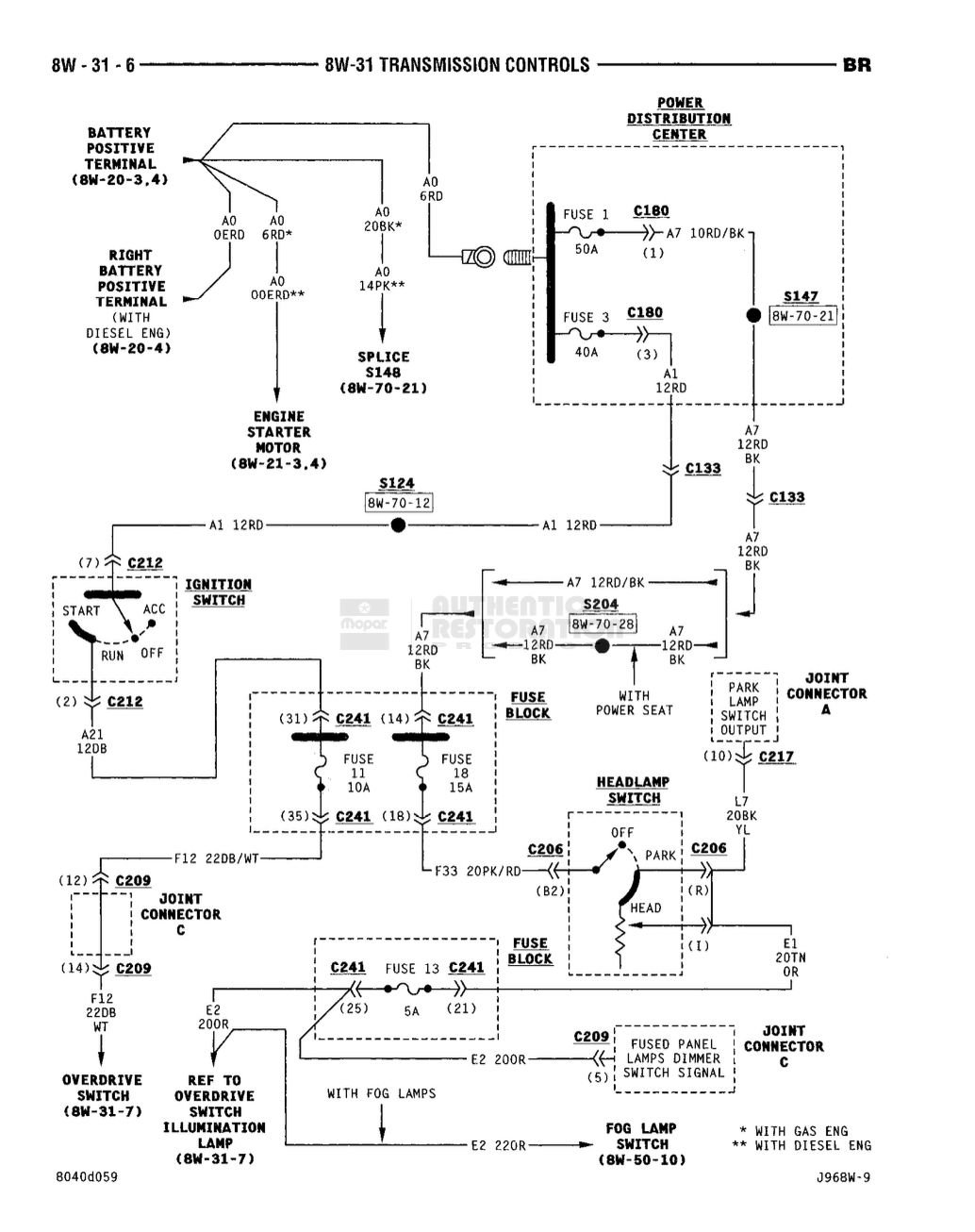
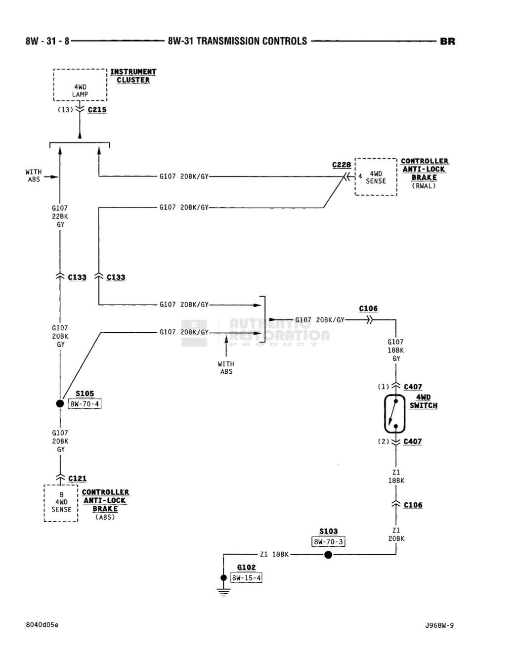
However If it’s a wiring issue then it means something is shorting out, exposed wiring or improper ground. You will have to go over the diagrams and then look for the issue. Just an fyi the color of the wires are added at the end of the fine print, example bk is black pk I’m pink wt is white lg is light green etc.


First page

Second page

Third page

Fourth page

Fifth page
​​​​​​​
 
Reply
Old Jul 26, 2024 | 04:52 PM
  #5  
Wolfen1086's Avatar
Wolfen1086
Thread Starter
|
Veteran
5 Year Member
Joined: Jul 2017
Posts: 264
Likes: 15
From: Rich Square NC
Default

I just downloaded that, thanks a lot
 
Reply




All times are GMT -4. The time now is 12:56 AM.